Системы подвесных потолков
в быстровозводимых зданиях из сэндвич - панелей

Системы подвесных потолков в быстровозводимых зданиях из сэндвич - панелей


  • Панели подвешиваются к каркасу металлоконструкции здания, который проектируется с учетом нагрузки панели на полку алюминиевого профиля с порошковым покрытием.

  • На складах во время эксплуатации при отрицательной температуре возникает разряжение воздуха от 30 даН / м² до 150 даН / м², что добавляет точечную нагрузку в дополнение к собственному весу панелей – этот параметр должен быть учтён при проектировании профилей.
Подвесные системы

1
  • Торцы панелей опираются на Т-образный алюминиевый профиль.

  • Сэндвич - панели закреплены к Т-профилю саморезами SCKD5195.5X32, либо заклёпками нерж/нерж 4,8 х 10 с шагом 25 см.

  • Т-профиль крепится к шпильке при помощи вилочного крепежа А.88 (см. рисунок).

  • Система крепления шпильки всегда должна быть адаптирована к типу несущей конструкции (это относится ко всем подвесным системам). Максимальное расстояние между точками подвеса составляет 1500 мм.

2
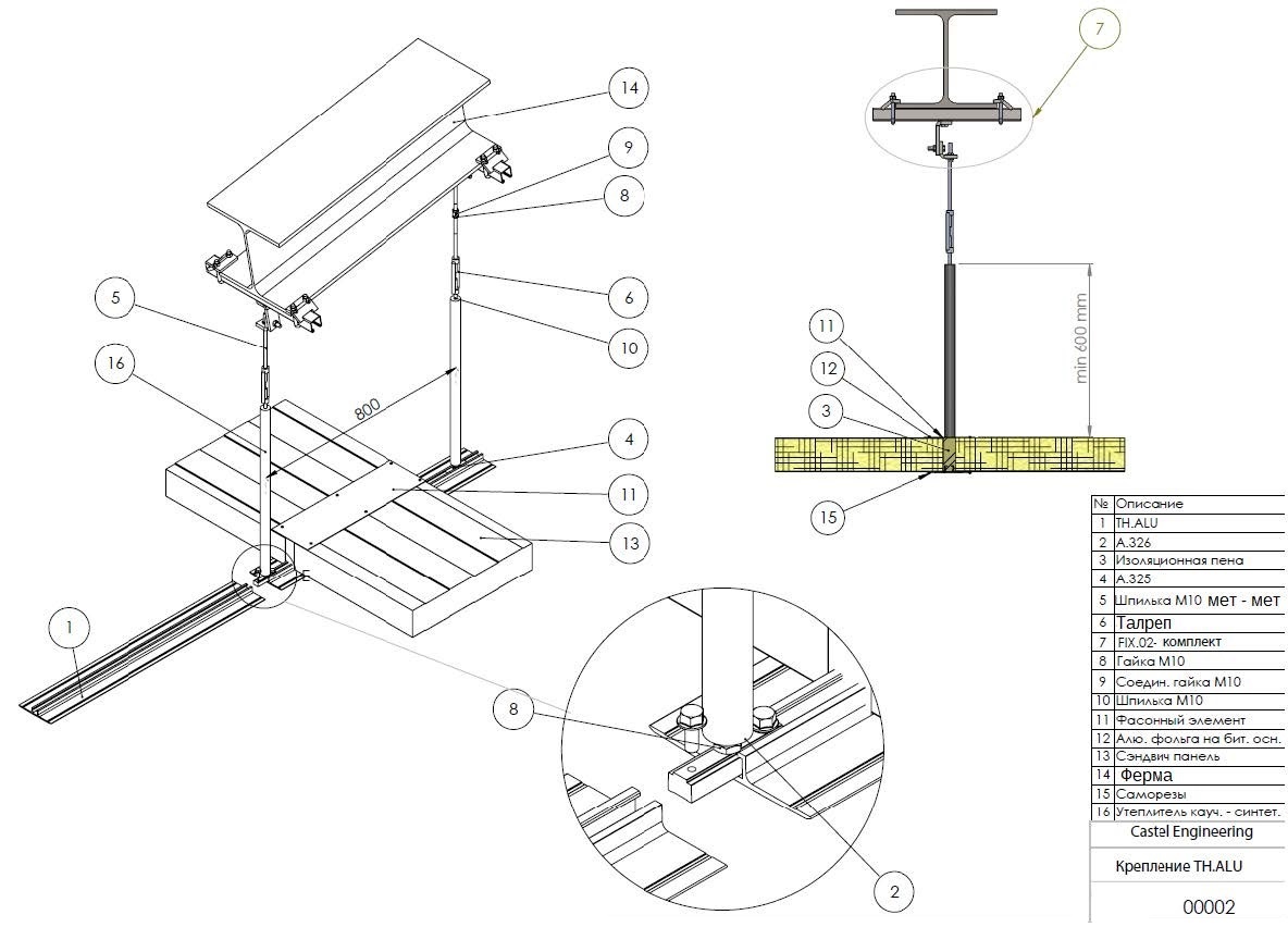
  • Торцы панелей опираются на алюминиевый омега-профиль TH.ALU.

  • К металлоконструкции профиль крепится шпильками при помощи термоизолированных креплений А.325 и соединителей А.326.

  • Омега-профиль TH.ALU имеет технологические углубления для нанесения герметизирующих составов.

  • При необходимости панель дополнительно закрепляется к профилю саморезами SCKD5195.5X32 или заклёпками 4,8 х 10 нерж/нерж с шагом 25 см, окрашенными в соответствующий RAL.

3
  • Торцы панелей подвешены на специальный ПВХ термокрепеж INJ.235 с металлической вставкой под шпильку M10 и уплотнительной ПВХ шайбой INJ.24 - 60 мм. из расчета два сквозных крепления на сторону панели.
  • Для системы подвесных потолков из сэндвич-панелей используется специальный ПВХ термокрепеж INJ.235 с металлической вставкой под шпильку M10 и уплотнительной ПВХ шайбой INJ.24.

  • Для стягивания и закрепления панели используется L – пластина, которая устанавливается для предотвращения падения панелей в случае пожара.
  • Промежуточные подвесы монтируются при помощи специального ПВХ термокрепежа INJ.235 с металлической вставкой под шпильку M10 и уплотнительной ПВХ шайб INJ.24. Сквозное отверстие в сэндвич-панели должно быть загерметизировано вокруг шпильки монтажной пеной.

  • При эксплуатации потолков в холодильных и морозильных складах возникает «точка росы» - это происходит по причине наличия разницы низкой температуры и влажности внутри и более высокой температуры и влажности снаружи. Для предотвращения образования росы шпильки должны быть изолированы снаружи изоляционной трубкой К-Флекс на высоту 20-30 см над потолком. Поперечные швы между панелями запениваются монтажной пеной при монтаже. Снаружи стыки закрываются металлизированной бутиловой лентой либо фасонным элементом.
Крепление панели в пролётах между балками
  • Панели потолка опираются торцевой частью на Т- профиль или омега-профиль TH.ALU. В зависимости от длины панелей рекомендуется устанавливать промежуточный подвес на специализированных ПВХ термокрепежах INJ.235 с металлической вставкой под шпильку M10 и уплотнительной ПВХ шайбой INJ.24 по длине панели.

  • Количество промежуточных подвесов определяется исходя из расчета – 1 точка - 150 даН, коэффициент минимального уровня безопасности - 3 (потолок доступен для обслуживания исключительно одним человеком).

  • Для крепления панелей и отделки не допускается сверление отверстий, кроме технологических.
Запрос коммерческого предложения
Cогласие на обработку персональных данных